Asking Price £4,850,000
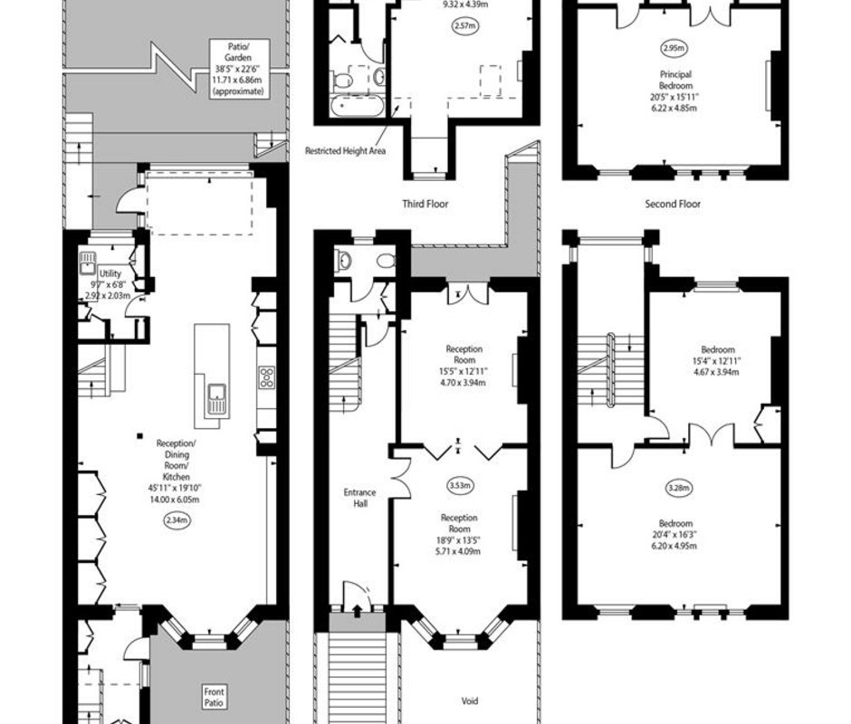
Located close to the heart of bustling Belsize Village with its array of cafes, restaurants (and summer al-fresco dining), convenience shopping and within close proximity of both Belsize Park and Swiss Cottage underground stations, a beautifully appointed mid-terrace Period house of some 3,405sq ft, which has been refurbished and extended to provide excellent four bedroom family accommodation complimented by a walled 38’ garden.
The generous, bright internal accommodation provides for an open plan 46’x20’ kitchen/dining/family with utility room on the lower ground floor level, a large entrance lobby and elegant interconnecting reception rooms with nearly 12’ ceiling heights and a guest WC on the raised ground floor.
Two over large double bedrooms make up the first floor (with potential to create a further bathroom on this level), a family bathroom on the next half landing with the principal suite of double bedroom, dressing area & en-suite bathroom taking up all of the second floor. A guest suite of double bedroom and en-suite bathroom is located on the third floor.

Our Vacant Management service involves overseeing unoccupied properties, ensuring their security and maintaining their condition to prevent deterioration and potential risks. Effective management of vacant properties includes regular checks, maintenance and implementing security measures to safeguard against damage.
Enquire about Vacant ManagementA Property Management service you can rely on with a service designed to suit you.
Contact Us
From Lettings right through to tenancy renewal and handling maintenance issues, this is by far the best agent I’ve had the experience with.
Local Guide
They have been so organized, efficient and helpful throughout our lettings process. We are delighted with the service they have provided. Thank you TK!
Local Guide
I have recently moved to Hampstead and I could not be happier with the service TK have provided, they have been an absolute pleasure to work
Local Guide