A superb and well presented five bedroom Victorian residence located in this desirable tree lined road in the heart of Hampstead Village.
The current owners undertook a comprehensive refurbishment of the entire house within the last 10 years and enjoys well planned family accommodation over four floors with numerous outstanding features which include a bespoke luxury kitchen, an extended glazed family room and air conditioning to the upper floors.
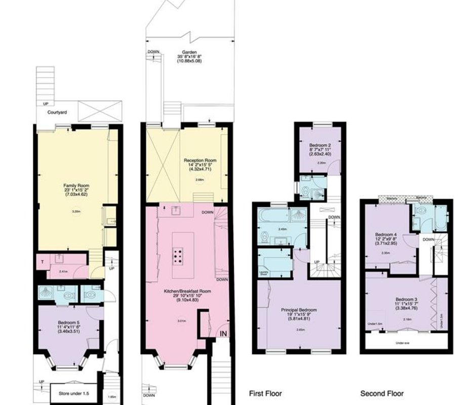
The raise ground floor is arranged as a large open plan 29' kitchen/dining room leading to a reception room with access to a beautiful westerly facing rear garden. The first floor comprises a comfortable principal bedroom with dressing room & en-suite bathroom and an additional bedroom and separate shower room. The top floor provides two further bedrooms and a family bathroom.
The lower ground floor boasts a 22' family room with access to the garden and bedroom 5 which includes an en-suite shower room. There is also a utility room and guest cloakroom.
Gayton Road is ideally located for the extensive facilities of the Village and is a short distance to Hampstead Heath and the underground station (Northern Line).

Our Vacant Management service involves overseeing unoccupied properties, ensuring their security and maintaining their condition to prevent deterioration and potential risks. Effective management of vacant properties includes regular checks, maintenance and implementing security measures to safeguard against damage.
Enquire about Vacant ManagementA Property Management service you can rely on with a service designed to suit you.
Contact Us
From Lettings right through to tenancy renewal and handling maintenance issues, this is by far the best agent I’ve had the experience with.
Local Guide
They have been so organized, efficient and helpful throughout our lettings process. We are delighted with the service they have provided. Thank you TK!
Local Guide
I have recently moved to Hampstead and I could not be happier with the service TK have provided, they have been an absolute pleasure to work
Local Guide