Asking Price £4,499,950
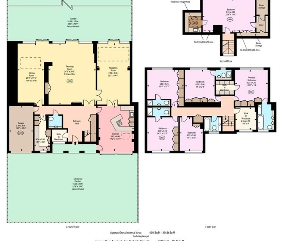
Approached via a deep carriage driveway, this low-built detached six-bedroom home (4,245 sq ft / 394 sq m) sits within a sought-after cul-de-sac just off West Heath Road, available for the first time in 30 years.
Arranged mainly over two floors, the property offers an excellent balance of spacious reception areas and well-proportioned bedrooms. The accommodation is entered via a grand reception hall leading to a 33'8" drawing room, dining room, and family room, each opening directly onto the beautifully landscaped rear garden. A large kitchen/breakfast room and separate utility room complete the ground floor.
The first floor features a principal bedroom suite with ensuite bathroom and walk-in wardrobe, three additional double bedrooms each with ensuite bathrooms, and a fifth bedroom served by a separate bathroom. The second floor provides a 22'8" bedroom with eaves storage — ideal for guests, a study, or a playroom.
Externally, the house enjoys a delightful 53'8" southerly facing landscaped garden, an integral garage, and a carriage driveway offering parking for 4–5 cars.
Perfectly positioned within a quiet cul-de-sac, the home is within easy reach of Hampstead Village, Golders Green (Northern Line), and the open spaces of Golders Hill Park and Hampstead Heath. Bus routes to the West End are also within walking distance.

Our Vacant Management service involves overseeing unoccupied properties, ensuring their security and maintaining their condition to prevent deterioration and potential risks. Effective management of vacant properties includes regular checks, maintenance and implementing security measures to safeguard against damage.
Enquire about Vacant ManagementA Property Management service you can rely on with a service designed to suit you.
Contact Us
From Lettings right through to tenancy renewal and handling maintenance issues, this is by far the best agent I’ve had the experience with.
Local Guide
They have been so organized, efficient and helpful throughout our lettings process. We are delighted with the service they have provided. Thank you TK!
Local Guide
I have recently moved to Hampstead and I could not be happier with the service TK have provided, they have been an absolute pleasure to work
Local Guide