£1,615 PW / £7,000 PCM
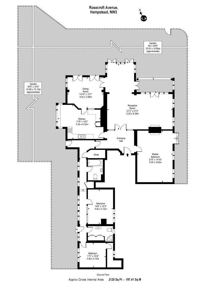
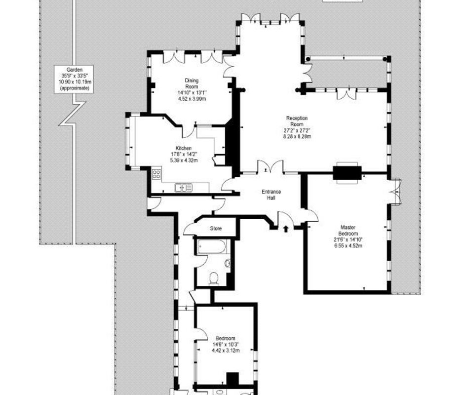
This large lateral three bedroom, two bathroom ground floor apartment has two receptions, an eat in kitchen, garden and parking for one car. Benefiting from hard wood floors and abundance of period features, the property has good natural light and direct access to the garden.
Situated in a fantastic converted Edwardian residence, the property is ideally located in a private, quiet, set back position within the Crofts making it walking distance to the Heath and the shops, restaurants and transport facilities of Hampstead Village (Northern Line).
EPC Rating: E

Our Vacant Management service involves overseeing unoccupied properties, ensuring their security and maintaining their condition to prevent deterioration and potential risks. Effective management of vacant properties includes regular checks, maintenance and implementing security measures to safeguard against damage.
Enquire about Vacant ManagementA Property Management service you can rely on with a service designed to suit you.
Contact Us
From Lettings right through to tenancy renewal and handling maintenance issues, this is by far the best agent I’ve had the experience with.
Local Guide
They have been so organized, efficient and helpful throughout our lettings process. We are delighted with the service they have provided. Thank you TK!
Local Guide
I have recently moved to Hampstead and I could not be happier with the service TK have provided, they have been an absolute pleasure to work
Local Guide